Micro Housing: Cube
Miami has perfected two paradigms for living: the detached single-family house and the apartment or condominium high-rise. For the last 50 years the car has reigned supreme and little thought was given to walkable urbanism. In Savannah, we witnessed a radically different model for living – infill urbanism. Within a height limited urban fabric composed of small lots, endless alternatives occur which embrace their dimensional limits with invention and creativity. While the overall massing of building may be prescribed, the internal configurations are unique and customized to reflect a wide range of living possibilities. This project seeks to develop this middle infill urbanism. Micro-apartment buildings bring together different families and living situations under one roof.
Site Axon
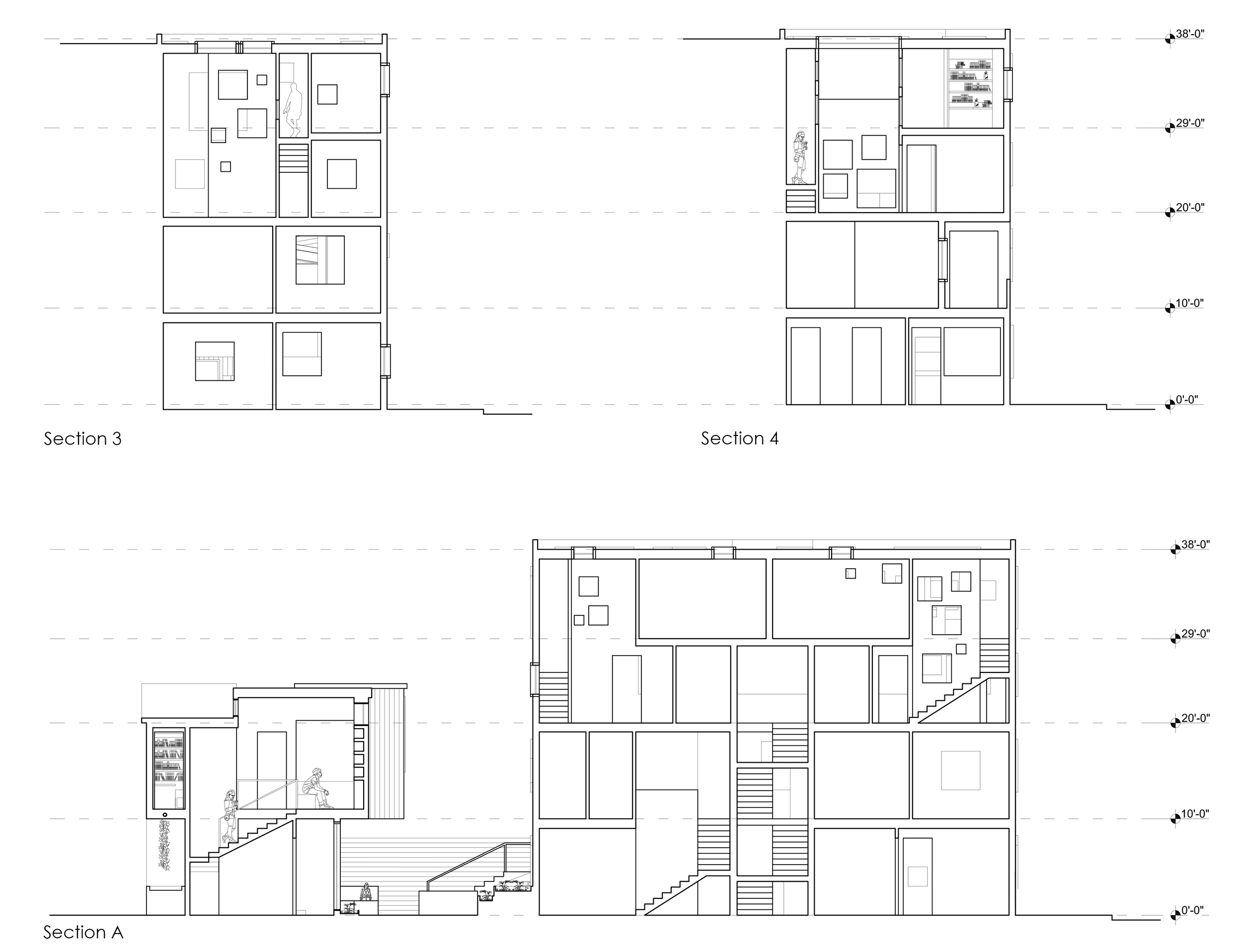
After studying Can Jaime i n’Isabelle by TEd’A Arquitectes one feature I really admired was the light sources, which created moments throughout the building. I implemented that in this Micro Housing project, in places where one would enjoy natural light, kitchens. living rooms, bedrooms, even bathrooms. Natural light helps mental health and overall happiness. Unlike my precedent, I was faced with a very limited square footage, which I made as comfortable as possible and gave each apartment as many little victories as possible.
Program
Plans
1: Kitchen 2: Living 3: Bedroom 4: Bathroom
Facades
Sections
Diagram
